返回
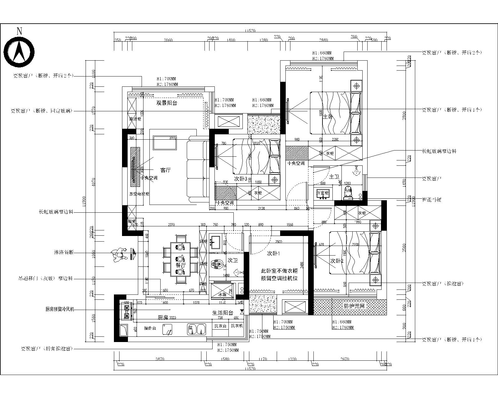
凤凰新城9栋1单元701房
凤凰新城9栋1单元701房
申请免费量房